LOTUS VİLLALARI

Proje Hakkında

Lotus Villaları

Lotus Villaları, Kayseri Melikgazi Altınoluk villa bölgesinin en güzel yerinde; Atlas Koleji’nin karşısında yükseliyor. Toplam 24 bin 108 metrekare alan üzerine 43 villadan oluşan proje; bodrum+zemin kat+normal kat olarak planlandı. (Bodrumsuz villalarımız da mevcut).

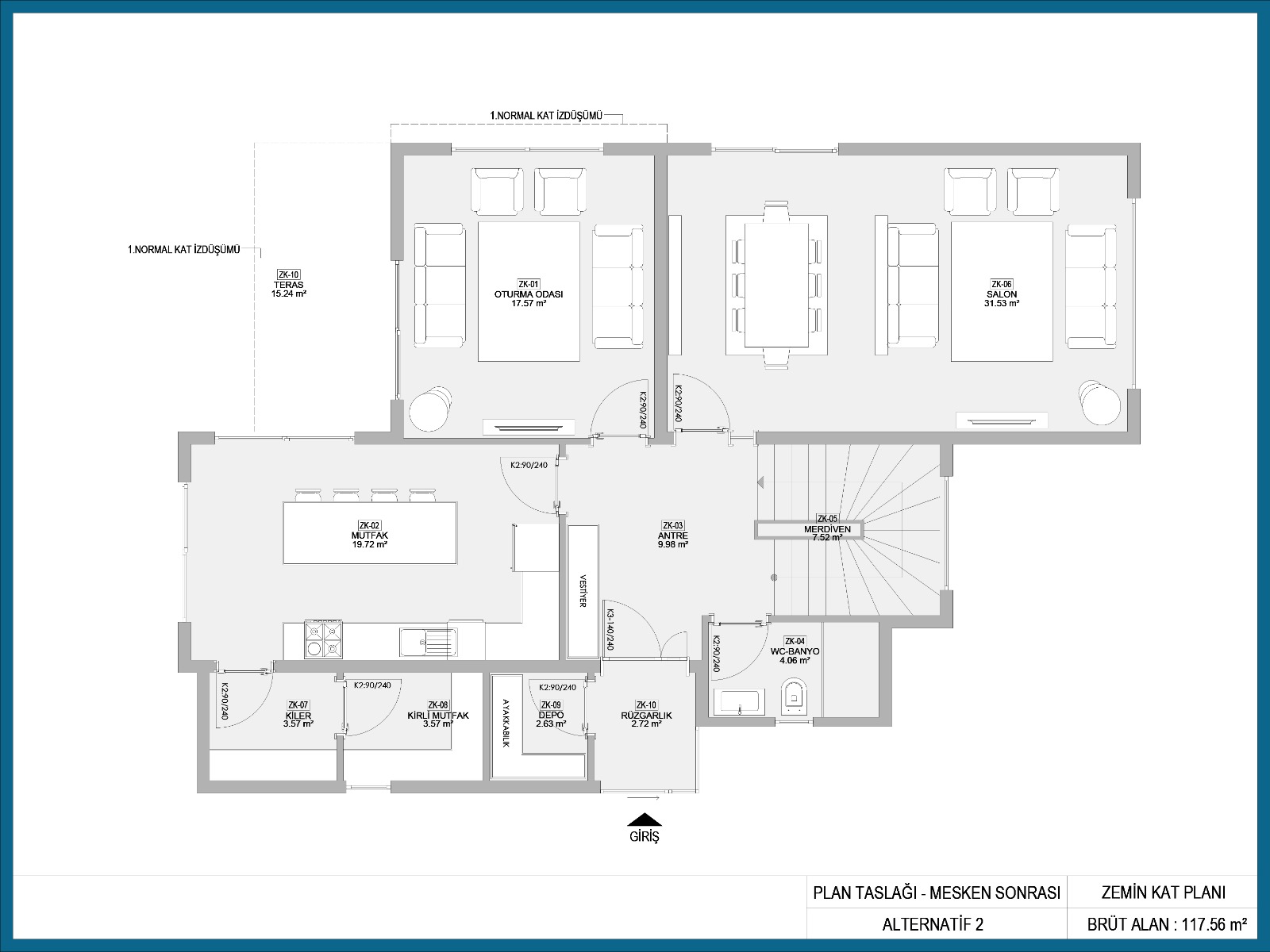
Lotus Villaları, brüt 300 metrekare, net 270 metrekare kullanım alanına sahip. Lotus Villaları 43 Villa Projesinde; 32 metrekare salon, 20 metrekare mutfak, 18 metrekare oturma odası, 16 metrekare veranda alanı, 4 yatak odası, 5 banyo, 5 lavabo, 2 adet balkon, kullanışlı bir giyinme odası, kiler, ütü odası, vestiyer odası ve kirli mutfak yer alıyor.

Modern şekilde tasarlanan Lotus Villaları yerden ısıtma sistemli ve pencereler panjurludur. Projenin elektrik ihtiyacı güneş enerjisi panelleriyle sağlanacak. Ebeveyn banyolarında jakuzi sistemi bulunuyor. Konforlu bir hayat için her ayrıntı düşünülerek hazırlanan villa projesi bireysel olup girişler de bireyseldir. 2 araçlık otoparka sahip projede, her villa için otoparka elektrikli şarj istasyonları için gerekli altyapılar oluşturulacak.

Proje Özellikleri

  • Toplam Alan: 24.108 m2
  • Metre Kare: Net: 270m2 Brüt: 300m2
  • 32 m2 Salon
  • 20 m2 Mutfak
  • 18 m2 Oturma Odası
  • 16 m2 Verenda Alanı
  • Yatak Oda Sayısı: 4
  • Banyo Sayısı: 5
  • Lavabo Sayısı: 5
  • Balkon Sayısı: 2
  • Kullanışlı Giyinme Odası
  • Kiler
  • Ütü Masası
  • Vestiyer Odası
  • Yerden Isıtma Sistemi
  • Panjurlu Pencereler
  • Elektrik Güneş Enerji Panelleri
  • 2 Araçlık Otopark
  • Her Villa için Elektrikli Şarj İstasyonu

Proje Galerisi

Lüks ve konforlu bir yaşam için her türlü detaya sahip Lotus Villalargsı 43 Villa Projesi hakkında bilgi edinmek için sayfamızdaki görselleri inceleyebilirsiniz.

Dış Görseller

Lotus Villaları Dış Görsel 1 Lotus Villaları Dış Görsel 2 Lotus Villaları Dış Görsel 3 Lotus Villaları Dış Görsel 4 Lotus Villaları Dış Görsel 5 Lotus Villaları Dış Görsel 6 Lotus Villaları Dış Görsel 7

İç Görseller

Lotus Villaları İç Görsel 1 Lotus Villaları İç Görsel 2 Lotus Villaları İç Görsel 3 Lotus Villaları İç Görsel 4 Lotus Villaları İç Görsel 5 Lotus Villaları İç Görsel 6 Lotus Villaları İç Görsel 7 Lotus Villaları İç Görsel 8 Lotus Villaları İç Görsel 9 Lotus Villaları İç Görsel 10 Lotus Villaları İç Görsel 11 Lotus Villaları İç Görsel 12 Lotus Villaları İç Görsel 13 Lotus Villaları İç Görsel 14 Lotus Villaları İç Görsel 15 Lotus Villaları İç Görsel 16 Lotus Villaları İç Görsel 17

Konum

Lotus Villaları Konum 1

Kat Planı

Lotus Villaları Kat Planı 1 Lotus Villaları Kat Planı 2 Lotus Villaları Kat Planı 3

Proje Konumu

Altınoluk, 38050 Melikgazi/Kayseri

Proje Tanıtım Videosu

Güncelleniyor...